Karta mieszkania – szablon
Dom
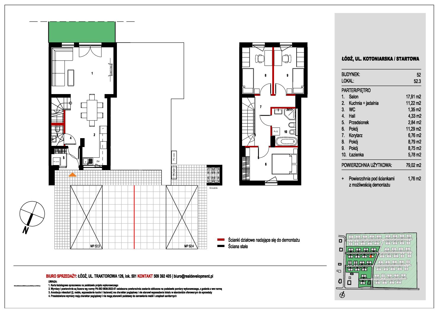
52.3
Status
Dostępny
Powierzchnia użytkowa
79,02 m²
Cena
728 957,92 zł
Cena/m²
9 224,98 zł
Ostatnia zmiana ceny 2025-09-11
Liczba pokoi
4
Piętro
parter
Ekspozycja
Północ-Południe
Powierzchnia dodatkowa
Ogród
35,00 m²
Elementy dodatkowe*
Udział w drodze
Miejsce postojowe naziemne
*do wyboru jedno miejsce postojowe
Kalkulator
Cena podstawowa
Udział w drodze
Suma

ZAPYTAJ O TO MIESZKANIE

Dzień dobry,
informujmujemy, że 2 Maja nasze biuro sprzedaży będzie nieczynne.

Jednakże, w razie jakichkolwiek pytań czy potrzeb pozostajemy do Państwa dyspozycji pod numerem telefonu

509 392 405